Intro

Sobre el proyecto

En esta primera etapa, el catálogo se focaliza en la arquitectura moderna y contemporánea proyectada y construida entre el 1832 –año de edificación de la primera chimenea industrial de Barcelona que establecemos como el inicio de la modernidad– hasta la actualidad.

El proyecto nace con el objetivo de hacer más accesible la arquitectura tanto a los profesionales como al conjunto de la ciudadanía por medio de una web que se irá actualizando y ampliando mediante la incorporación de las obras contemporáneas de mayor interés general, siempre con una necesaria perspectiva histórica suficiente, a la vez que añadiendo gradualmente obras de nuestro pasado, con el ambicioso objetivo de comprender un mayor período documental.

El fondo se nutre de múltiples fuentes, principalmente de la generosidad de estudios de arquitectura y fotografía, a la vez que de gran cantidad de excelentes proyectos editoriales históricos y de referencia, como guías de arquitectura, revistas, monografías y otras publicaciones. Asimismo, tiene en consideración todas las fuentes de referencia de las diversas ramas y entidades asociadas al COAC y de otras entidades colaboradoras vinculadas con los ámbitos de la arquitectura y el diseño, en su máximo espectro.

Cabe mencionar especialmente la incorporación de vasta documentación procedente del Archivo Histórico del COAC que, gracias a su riqueza documental, aporta gran cantidad de valiosa –y en algunos casos inédita– documentación gráfica.

El rigor y el criterio de la selección de las obras incorporadas se establece por medio de una Comisión Documental, formada por el Vocal de Cultura del COAC, el director del Archivo Histórico del COAC, los directores del Archivo Digital del COAC y profesionales y otros expertos externos de todas las Demarcaciones que velan por ofrecer una visión transversal del panorama arquitectónico presente y pasado alrededor del territorio.

La voluntad de este proyecto es la de devenir el fondo digital más extenso sobre arquitectura catalana; una herramienta clave de información y documentación arquitectónica ejemplar que se convierta en un referente no solo local, sino internacional, en la forma de explicar y mostrar el patrimonio arquitectónico de un territorio.

Aureli Mora i Omar Ornaque
Directores arquitecturacatalana.cat

credits

Quiénes somos

Proyecto de:

Impulsado por:

Directores:

2019-2026 Aureli Mora i Omar Ornaque

Comisión Documental:

2019-2026 Ramon Faura Carolina B. Garcia Eduard Callís Francesc Rafat Pau Albert Antoni López Daufí Joan Falgueras Mercè Bosch Jaume Farreny Anton Pàmies Juan Manuel Zaguirre Josep Ferrando Gemma Ferré Inés de Rivera Fernando Marzá Moisés Puente Aureli Mora Omar Ornaque

Colaboradores:

2019-2026 Lluis Andreu Sergi Ballester Marianela Pla Maria Jesús Quintero Lucía M. Villodres Montse Viu

Colaboradores Externos:

2019-2026 Helena Cepeda Inès Martinel

Con el soporte de:

Generalitat de Catalunya. Departament de Cultura

Entidades Colaboradoras:

ArquinFAD

 

Fundació Mies van der Rohe

 

Fundación DOCOMOMO Ibérico

 

Basílica de la Sagrada Família

 

Museu del Disseny de Barcelona

 

Fomento

 

AMB

 

EINA Centre Universitari de Disseny i Art de Barcelona

 

IEFC

 

Fundació Domènench Montaner.

 

ETSAB

Diseño y Programación:

edittio Nubilum
Sugerencias

Buzón de sugerencias

Solicita la imagen

Te invitamos a ayudarnos a mejorar la difusión de la arquitectura catalana mediante este espacio, donde podrás proponernos obras, aportar o enmendar información sobre obras, autores y fotógrafos, además de hacernos todos aquellos comentarios que consideres. Los datos serán analizados por la Comisión Documental. Rellena sólo aquellos campos que consideres oportunos para añadir o subsanar información.

El Arxiu Històric del Col·legi d'Arquitectes de Catalunya es uno de los centros de documentación más importantes de Europa, que custodia los fondos profesionales de más de 180 arquitectos, cuya obra es fundamental para comprender la historia de la arquitectura catalana. Mediante este formulario, podras solicitar copias digitales de los documentos de los que el Arxiu Històric del COAC gestiona los derechos de explotación de los autores, además de aquellos que se encuentren en dominio público. Una vez realizada la solicitud, el Arxiu Històric del Col·legi d'Arquitectes de Catalunya te hará llegar una estimación del presupuesto, variable en cada casuística de uso y finalidad.

Detalle:

* Si la memoria tiene autoría o derechos conocidos, puede citarlos en el campo anterior 'Comentarios' .

Eliminar * Si las fotografías tienen autoría o derechos conocidos, puede citarlos en el campo anterior 'Comentarios'.
Puedes adjuntar hasta 5 archivos de 10 MB cada uno como máximo.

Información básica de protección de datos

Responsable del tratamiento: Colegio de Arquitectos de Cataluña 'COAC'.
Finalidad del tratamiento: Tramitar la sol·licitud de copias digitales de los documentos de los cuales el Archivo Histórico del COAC gestiona los derechos de explotación de los autores, además de aquellos que se encuentren en dominio público.
Legitimación del tratamiento: Su consentimiento para tratar sus datos personales.
Destinatario de cesiones o transferencias: El COAC no realiza cesiones o transferencias internacionales de datos personales.
Derechos de las personas interesadas: Acceder, rectificar y suprimir sus datos, así como, el ejercicio otros derechos conforme al establecido a la información adicional.
Información adicional: Puede consultar la información adicional y detallada sobre protección de datos en este enlace

Como ir

En Imágenes

Ver todas las imágenes
  • Consolidació de diversos edificis de La Remunta

  • Consolidació de diversos edificis de La Remunta

  • Consolidació de diversos edificis de La Remunta

  • Consolidació de diversos edificis de La Remunta

  • Consolidació de diversos edificis de La Remunta

  • Consolidació de diversos edificis de La Remunta

  • Consolidació de diversos edificis de La Remunta

  • Consolidació de diversos edificis de La Remunta

  • Consolidació de diversos edificis de La Remunta

  • Consolidació de diversos edificis de La Remunta

  • Consolidació de diversos edificis de La Remunta

  • Consolidació de diversos edificis de La Remunta

  • Consolidació de diversos edificis de La Remunta

  • Consolidació de diversos edificis de La Remunta

  • Consolidació de diversos edificis de La Remunta

  • Consolidació de diversos edificis de La Remunta

  • Consolidació de diversos edificis de La Remunta

  • Consolidació de diversos edificis de La Remunta

  • Consolidació de diversos edificis de La Remunta

  • Consolidació de diversos edificis de La Remunta

Memoria

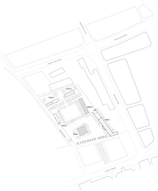
El projecte contempla la consolidació estructural i la restauració de l’envolupant (façanes i cobertes) de quatre edificis ( 1,3,4 i 5) del recinte de l’antiga caserna de La Remunta a l’Hospitalet de Llobregat, destinada a la cria de cavalls per part de l’exèrcit. Actualment la major part d’aquest antic recinte s’ha convertit en parc públic.
L’encàrrec no comportava la posada en funcionament dels edificis, alguns dels quals encara no tenien ús definit. Es tractava d’enderrocar tots els elements de distribució no originals, eliminar cossos afegits sense valor patrimonial, garantir l’estabilitat i estanquitat dels edificis, i recuperar-ne la imatge externa. Aquestes actuacions tenien la finalitat d’ aturar els processos de degradació mentre se’n decidia el seu destí definitiu i de fer-los compatibles amb la utilització del parc.
A l’edifici, el de major dimensió i complexitat. es va aprofundir més en la seva rehabilitació i definició de nous accessos.

Autor: Ravetllat-Ribas Arquitectes

Autores

Como ir

Sobre el Mapa

Premiadas
Catalogadas
Desaparecidas
Todas las obras

Constelación

Cronología

  1. Masia la Remunta

    autoria desconeguda

  2. Consolidació de diversos edificis de La Remunta

    Pere Joan Ravetllat i Mira, Carme Ribas i Seix, Olga Schmid

    Consolidació de diversos edificis de La Remunta

    El projecte contempla la consolidació estructural i la restauració de l’envolupant (façanes i cobertes) de quatre edificis ( 1,3,4 i 5) del recinte de l’antiga caserna de La Remunta a l’Hospitalet de Llobregat, destinada a la cria de cavalls per part de l’exèrcit. Actualment la major part d’aquest antic recinte s’ha convertit en parc públic. L’encàrrec no comportava la posada en funcionament dels edificis, alguns dels quals encara no tenien ús definit. Es tractava d’enderrocar tots els elements de distribució no originals, eliminar cossos afegits sense valor patrimonial, garantir l’estabilitat i estanquitat dels edificis, i recuperar-ne la imatge externa. Aquestes actuacions tenien la finalitat d’ aturar els processos de degradació mentre se’n decidia el seu destí definitiu i de fer-los compatibles amb la utilització del parc. A l’edifici, el de major dimensió i complexitat. es va aprofundir més en la seva rehabilitació i definició de nous accessos.
  3. Premi Europeu d'Intervenció en el Patrimoni Arquitectònic AADIPA

    Seleccionado. Categoría: Intervenció en el Patrimoni Construït

    Premi Europeu d'Intervenció en el Patrimoni Arquitectònic AADIPA

    Consolidació de diversos edificis de La Remunta

    Pere Joan Ravetllat i Mira, Carme Ribas i Seix, Olga Schmid

Obras Relacionadas

Conjunto Masia la Remunta

Bústia suggeriments

Ajuda’ns a millorar el web i el seu contingut. Proposa’ns obres, aporta o esmena informació sobre obres, autors i fotògrafs, o comenta’ns el què penses. Participa!