Intro

Sobre el projecte

El fons documental digital del projecte es focalitza actualment en l’arquitectura moderna i contemporània projectada i construïda entre el 1832 –any de construcció de la primera xemeneia industrial de Barcelona, i de l’estat, que establim com a inici de la modernitat– fins l’actualitat.

El projecte, promogut pel Col·legi d'Arquitectes de Catalunya (COAC), té l’objectiu de fer més accessible l’arquitectura tant als professionals del sector com al conjunt de la ciutadania per mitjà d’un web que es millora, s’actualitza i amplia el seu fons documental progressivament.

El fons es nodreix de múltiples fonts, principalment de la generositat d’estudis d’arquitectura i fotografia, alhora que de la gran quantitat d’excel·lents projectes editorials històrics i de referència, com guies d’arquitectura, revistes, monografies i d’altres publicacions. Alhora, té en consideració tots els fons de referència de les diverses seus i entitats associades al COAC i d’altres fons provinents d’entitats col·laboradores vinculades als àmbits de l’arquitectura i el disseny, en el seu màxim espectre.

Cal mencionar especialment la divulgació de vasta documentació provinent de l’Arxiu Històric del COAC que, gràcies a la seva riquesa documental, aporta gran quantitat de valuosa –i en molts casos inèdita– documentació gràfica.

El rigor i criteri de la selecció de les obres incorporades s’estableix per mitjà d’una Comissió Documental, formada pel Vocal de Cultura del COAC, el director de l’Arxiu Històric del COAC, els directors de l’Arxiu Digital del COAC, comissionats escollits per les demarcacions del COAC i professionals i d’altres experts externs que vetllen per oferir una visió transversal del panorama arquitectònic present i passat d’arreu del territori.

Benvingut al fons digital més extens sobre arquitectura catalana; una eina clau i exemplar de divulgació i documentació arquitectònica, referent no només local, sinó internacional, en la forma d’explicar i mostrar el patrimoni arquitectònic d’un territori.

Aureli Mora i Omar Ornaque
Directors arquitecturacatalana.cat

credits

Qui som

Projecte de:

Promogut per:

Directors:

2019-2026 Aureli Mora i Omar Ornaque

Comissió Documental:

2019-2026 Ramon Faura Carolina B. Garcia Eduard Callís Francesc Rafat Pau Albert Antoni López Daufí Joan Falgueras Mercè Bosch Jaume Farreny Anton Pàmies Juan Manuel Zaguirre Josep Ferrando Gemma Ferré Inés de Rivera Fernando Marzá Moisés Puente Aureli Mora Omar Ornaque

Col·laboradors:

2019-2026 Lluis Andreu Sergi Ballester Marianela Pla Maria Jesús Quintero Lucía M. Villodres Montse Viu

Col·laboradors Externs:

2019-2026 Helena Cepeda Inès Martinel

Amb el suport de:

Generalitat de Catalunya. Departament de Cultura

Entitats Col·laboradores:

ArquinFAD

 

Fundació Mies van der Rohe

 

Fundación DOCOMOMO Ibérico

 

Basílica de la Sagrada Família

 

Museu del Disseny de Barcelona

 

Fomento

 

AMB

 

EINA Centre Universitari de Disseny i Art de Barcelona

 

IEFC

 

Fundació Domènench Montaner.

 

ETSAB

Disseny i Programació:

edittio Nubilum
Suggeriments

Bústia de suggeriments

Sol·licita la imatge

Et convidem a ajudar-nos a millorar la difusió de l'arquitectura catalana mitjançant aquest espai obert a l’usuari on podràs proposar-nos obres, aportar o esmenar informació sobre obres, autors i fotògrafs, a més de fer-nos tots aquells comentaris que consideris. Les dades seran analitzades per la Comissió Documental del projecte i gestionades pel nostre equip editorial. Si-us-plau, emplena només aquells camps que consideris oportuns per afegir o esmenar informació.

Mitjançant aquest formulari podràs sol·licitar còpies digitals dels documents dels quals l’Arxiu Històric del Col·legi d'Arquitectes de Catalunya (COAC) en gestiona els drets d'explotació dels autors, a més d’aquells que es trobin en domini públic. L'Arxiu Històric del COAC és un dels centres de documentació més importants d'Europa, que custodia els fons professionals de més de 180 arquitectes, l'obra dels quals esdevé fonamental per comprendre la història de l'arquitectura catalana. Un cop realitzada la sol·licitud, l'Arxiu Històric del COAC et farà arribar una estimació del preu de la teva sol·licitud, variable en cada casuística de drets, ús i finalitat.

Detall:

* Si la memòria té autoria o drets coneguts, cita’ls a l’anterior camp 'Comentaris' .

Eliminar * Si les fotografies tenen autoria o drets coneguts, cita’ls a l’anterior camp 'Comentaris'.
Pots adjuntar fins a 5 arxius de 10 MB cadascun com a màxim.

Informació bàsica de protecció de dades

Responsable del tractament: Col·legi d Arquitectes de Catalunya 'COAC'
Finalitat del tractament: Tramitar la sol·licitud de còpies digitals dels documents dels quals l’Arxiu Històric del COAC gestiona els drets d'explotació dels autors, a més d'aquells que es trobin en domini públic.
Legitimació del tractament: El seu consentiment per tractar les seves dades personals.
Destinatari de cessions o transferències: El COAC no realitza cessions o transferències internacionals de dades personals.
Drets de les persones interessades: Accedir, rectificar i suprimir les seves dades, així com, l’exercici d’altres drets conforme a l’establert a la informació addicional.
Informació addicional: Pot consultar la informació addicional i detallada sobre protecció de dades en aquest enllaç

Com anar-hi

En Imatges

Veure totes les imatges
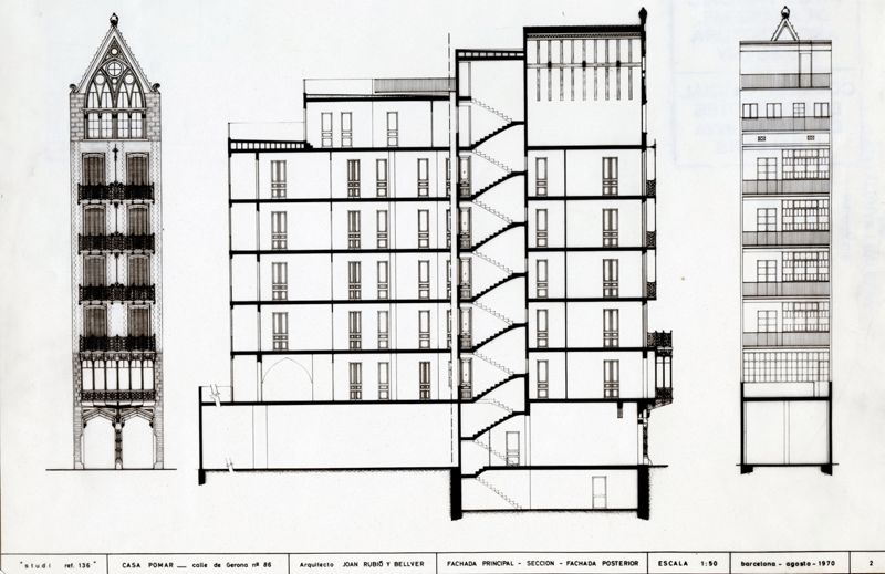
  • Casa Pomar

  • Casa Pomar

  • Casa Pomar

  • Casa Pomar

  • Casa Pomar

  • Casa Pomar

  • Casa Pomar

  • Casa Pomar

  • Casa Pomar

  • Casa Pomar

  • Casa Pomar

  • Casa Pomar

  • Casa Pomar

Bústia suggeriments

Ajuda’ns a millorar el web i el seu contingut. Proposa’ns obres, aporta o esmena informació sobre obres, autors i fotògrafs, o comenta’ns el què penses. Participa!