Intro

About

In this first stage, the catalogue focuses on the modern and contemporary architecture designed and built between 1832 –year of construction of the first industrial chimney in Barcelona that we establish as the beginning of modernity– until today.

The project is born to make the architecture more accessible both to professionals and to the citizens through a website that is going to be updated and extended. Contemporary works of greater general interest will be incorporated, always with a necessary historical perspective, while gradually adding works from our past, with the ambitious objective of understanding a greater documented period.

The collection feeds from multiple sources, mainly from the generosity of architectural and photographic studios, as well as the large amount of excellent historical and reference editorial projects, such as architectural guides, magazines, monographs and other publications. It also takes into consideration all the reference sources from the various branches and associated entities with the COAC and other collaborating entities related to the architectural and design fields, in its maximum spectrum.

Special mention should be made of the incorporation of vast documentation from the COAC Historical Archive which, thanks to its documental richness, provides a large amount of valuable –and in some cases unpublished– graphic documentation.

The rigour and criteria for selection of the works has been stablished by a Documental Commission, formed by the COAC’s Culture Spokesperson, the director of the COAC Historical Archive, the directors of the COAC Digital Archive, and professionals and other external experts from all the territorial sections that look after to offer a transversal view of the current and past architectural landscape around the territory.

The determination of this project is to become the largest digital collection about Catalan architecture; a key tool of exemplar information and documentation about architecture, which turns into a local and international referent, for the way to explain and show the architectural heritage of a territory.

Aureli Mora i Omar Ornaque
Directors arquitecturacatalana.cat

credits

About us

Project by:

Created by:

Directors:

2019-2026 Aureli Mora i Omar Ornaque

Documental Commission:

2019-2026 Ramon Faura Carolina B. Garcia Eduard Callís Francesc Rafat Pau Albert Antoni López Daufí Joan Falgueras Mercè Bosch Jaume Farreny Anton Pàmies Juan Manuel Zaguirre Josep Ferrando Gemma Ferré Inés de Rivera Fernando Marzá Moisés Puente Aureli Mora Omar Ornaque

Collaborators:

2019-2026 Lluis Andreu Sergi Ballester Marianela Pla Maria Jesús Quintero Lucía M. Villodres Montse Viu

External Collaborators:

2019-2026 Helena Cepeda Inès Martinel

With the support of:

Generalitat de Catalunya. Departament de Cultura

Collaborating Entities:

ArquinFAD

 

Fundació Mies van der Rohe

 

Fundación DOCOMOMO Ibérico

 

Basílica de la Sagrada Família

 

Museu del Disseny de Barcelona

 

Fomento

 

AMB

 

EINA Centre Universitari de Disseny i Art de Barcelona

 

IEFC

 

Fundació Domènench Montaner.

 

ETSAB

Design & Development:

edittio Nubilum
Suggestions

Suggestion box

Request the image

We kindly invite you to help us improve the dissemination of Catalan architecture through this space. Here you can propose works and provide or amend information on authors, photographers and their work, along with adding comments. The Documentary Commission will analyze all data. Please do only fill in the fields you deem necessary to add or amend the information.

The Arxiu Històric del Col·legi d'Arquitectes de Catalunya is one of the most important documentation centers in Europe, which houses the professional collections of more than 180 architects whose work is fundamental to understanding the history of Catalan architecture. By filling this form, you can request digital copies of the documents for which the Arxiu Històric del Col·legi d'Arquitectes de Catalunya manages the exploitation of the author's rights, as well as those in the public domain. Once the application has been made, the Arxiu Històric del Col·legi d'Arquitectes de Catalunya will send you an approximate budget, which varies in terms of each use and purpose.

Detail:

* If the memory has known authorship or rights, cite them in the field above 'Comments' .

Remove * If the photographs has known authorship or rights, cite them in the field above 'Comments'.
You can attach up to 5 files of up to 10 MB each.

Informació bàsica de protecció de dades

Responsable del tractament: Col·legi d Arquitectes de Catalunya 'COAC'
Finalitat del tractament: Tramitar la sol·licitud de còpies digitals dels documents dels quals l’Arxiu Històric del COAC gestiona els drets d'explotació dels autors, a més d'aquells que es trobin en domini públic.
Legitimació del tractament: El seu consentiment per tractar les seves dades personals.
Destinatari de cessions o transferències: El COAC no realitza cessions o transferències internacionals de dades personals.
Drets de les persones interessades: Accedir, rectificar i suprimir les seves dades, així com, l’exercici d’altres drets conforme a l’establert a la informació addicional.
Informació addicional: Pot consultar la informació addicional i detallada sobre protecció de dades en aquest enllaç

How to get there

In Pictures

  • CAP Bordeta Magraners

  • CAP Bordeta Magraners

  • CAP Bordeta Magraners

  • CAP Bordeta Magraners

View all images
  • CAP Bordeta Magraners

  • CAP Bordeta Magraners

  • CAP Bordeta Magraners

  • CAP Bordeta Magraners

Memory

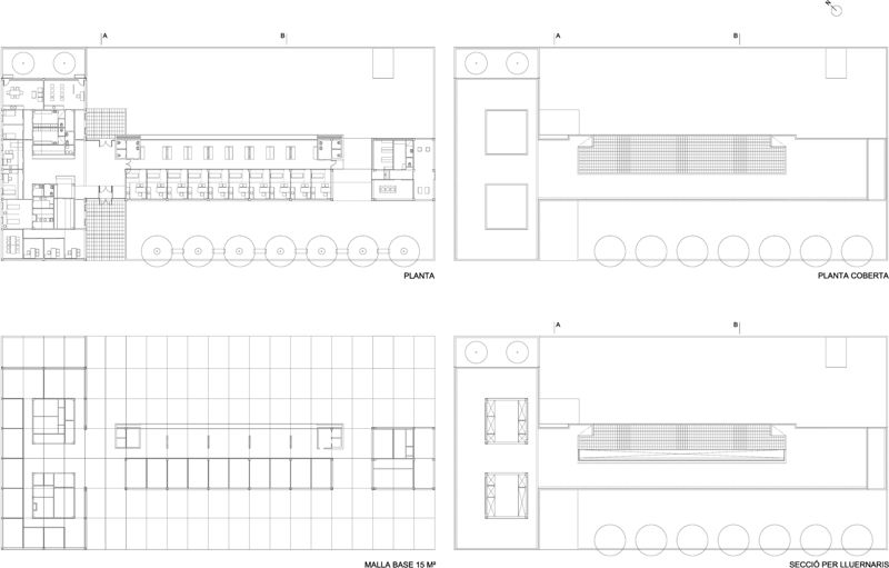
El solar és rectangular i pla, situat a la perifèria de La Bordeta al vèrtex d’una zona d’equipaments. Fa 33 anys, en el moment de fer el projecte, el CAP era el primer d’aquests edificis públics.


El programa del CAP estava molt ben definit i es prestava a modular-lo amb una malla de 15 m² que correspon a la superfície de la consulta, i la vam aplicar a tot el solar.

L’edifici esta format per 2 cossos d’una sola planta separats pel vestíbul. Un cos s’adossa a la cantonada del solar, donant façana al carrer existent, i conté els espais d’ús intern (administració, personal i atenció continuada). Longitudinal al solar es situa el segon cos que conté les consultes amb la sala d’espera i les instal·lacions. A banda i banda hi han dos espais exteriors, un que amplia el carrer, i l’altre que imaginàvem enjardinat, amb vistes als camps de fruiters.

La coberta i l’estructura de formigó són sempre evidents. Els paviments i els revestiments interiors i exteriors son de terratzo verd amb dos acabats diferents, polit o granellat. Els aplacats interiors de fusta identifiquen les àrees que utilitza el públic. Dos volums que sobresurten de la coberta tenen finestres que il·luminen les peces interiors.

L’any 2004 s’ha portat a terme una important ampliació del CAP , en la que no hem intervingut

Author: Joaquim Solé Mir, Joan Artigues Artigas

Authors

How to get there

On the Map

Awarded
Cataloged
Disappeared
All works

Constellation

Bústia suggeriments

Ajuda’ns a millorar el web i el seu contingut. Proposa’ns obres, aporta o esmena informació sobre obres, autors i fotògrafs, o comenta’ns el què penses. Participa!